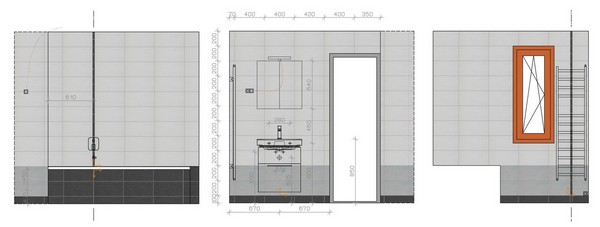
Rekonstrukce RD Frýdek-Místek
Rozsah: Projekce (spárořezy), koupelna, ZTI, topení
Realizace: 2017

Rekonstrukce koupelny Václavov u Zábřeha
Rozsah: Návrh, spárořezy, koupelna, ZTI, bojler
Realizace: 2014

Rekonstrukce bytového jádra Zábřeh
Rozsah: Návrh, bytové jádro, podlahy, kuchyň
Realizace: 2011

Rekonstrukce bytového jádra Zábřeh
Rozsah: Návrh, bytové jádro, podlahy, kuchyň
Realizace: 2011

Rekonstrukce bytu Zábřeh
Rozsah: Bytové jádro, elektroinstalace, dveře, podlahy, kuchyň
Realizace: 2011

Rekonstrukce bytového jádra Zábřeh
Rozsah: Bytové jádro, elektroinstalace, kuchyň
Realizace: 2010

Rekonstrukce bytu Zábřeh
Rozsah: Bytové jádro, elektroinstalace, dveře, podlahy, kuchyň
Realizace: 2010
